Vente Entrepôt de 9960 m² Puiseux-en-France





Caractéristiques
- Dessertes et accès : Autres: Bus Général Leclerc (BUS-R7, BUS-R1, BUS-FILEO SURVILLIERS) RER LOUVRES (RER D) Transilien Louvres (TRAIN-RER D) SNCF Louvres (France) Autoroute A1 Route N104 Aéroport Roissy (12 km - 14 min)
- Disponibilité : 13 mois après accord
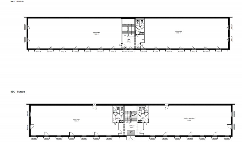
- Autre : BATIMENT . Charpente béton . Hauteur de stockage de 9,5 mètres sous poutres . Eclairage zénithal : 2 % . Chauffage des cellules par rooftop en toiture assurant une température de +5°C . Dallage sans joints dimensionné pour : . 3 t/m² de charge uniformément répartie, . 6,3 t sous platine de racks de 15 x 15 cm² . 3 t par roue de chariot . Portes de quais manuelles 2,80 m x 3,00 m compris section hublots transparents. . Portes de plain-pied électriques 4,00 m x 4,00 m compris hublots transparents. . Quais niveleurs intégrés 2,20 m x 2,50 m, charge statique 9 t à lèvre rabattable compris guides-roues . Eclairage 100% LED, délivrant : ? 200 lux en zone de préparation ? 150 lux dans les allées . PROTECTION INCENDIE Mise en place de détection d'une incendie et RIA, selon règles R5 de l'APSAD. ICPE : 1510 BUREAUX - LOCAUX SOCIAUX . Bureaux RDC, R+1 aménagés en open space . Isolation et double vitrage des bureaux selon calcul RE2020 . Revêtement carrelage au RDC et dans les locaux sociaux ? Revêtement sol souple dans les parties bureaux . Chauffage-rafraichissement des bureaux par système réversible de type PAC ou équivalent . Ventilation double flux compris centrale de traitement d'air . Eclairage par LED : . 300 lux dans les bureaux . 200 lux dans les locaux sociaux LOCAUX TECHNIQUES . Local transfo de 600 kVa alimenté par un tarif vert . Réserve de puissance de 25% pour process . Local TGBT Surface RDC : 9260 m² Surface terrain : 0
Bien divisible : Tableau des surfaces
A proximité : Transports et Commerces (moins de 500m)
9 560 800 € H.H. *
1 850 €/m² H.H. *
Précision des honoraires
15% HT du loyer annuel HT HC à la charge du preneurHonoraires agence inclus
non
Barème des honoraires :
Consulter la documentation:
75008 PARIS

75008 PARIS
Ces annonces pourraient aussi vous plaire




















Nos services sur mesure
- vente local d'activités / entrepôt à Louvres (95380)
- vente local d'activités / entrepôt à Goussainville (95190)
- vente local d'activités / entrepôt à Survilliers (95470)
- vente local d'activités / entrepôt à Ézanville (95440)
- vente local d'activités / entrepôt à Tremblay-en-France (93290)
- vente local d'activités / entrepôt à Moisselles (95570)
- vente local d'activités / entrepôt à Lamorlaye (60260)
- vente local d'activités / entrepôt à Villeneuve-sous-Dammartin (77230)
- vente local d'activités / entrepôt à Sarcelles (95200)
- vente local d'activités / entrepôt à Longperrier (77230)
Le portail SeLoger bureaux & commerces calcule automatiquement l'ensemble des valeurs à partir des informations données par l'annonceur. Le choix exprimé par l'internaute dans les critères de recherche détermine le type de loyer affiché. Dans les calculs des loyers convertis, certains écarts peuvent se présenter. Les informations communiquées sont destinées à SeLoger bureaux & commerces. Vous bénéficiez d'un droit d'accès, de modification, de rectification et de suppression de vos données personnelles (Loi du 6 janvier 1978 relative à l'informatique, aux fichiers et aux libertés). Pour les exercer, adressez-vous à : SeLoger bureaux & commerces - 65, rue Ordener, 75018 Paris. Déclaration CNIL n° 568303.
HT (hors taxes), TTC (taxes comprises), HC (hors charges), CC (charges comprises), HH (hors honoraires), HI (honoraires inclus).
Les informations liées aux honoraires peuvent être consultées depuis le détail de l’annonce ou obtenues par l’annonceur directement.
DAB : Droit au bail (comprend également le pas de porte et la cession de bail).
- Accueil
- Val-d'Oise
- Puiseux-en-France
- Achat locaux d'activités et entrepôts Puiseux-en-France